Simplify your online presence. Elevate your brand.

Using Revitlink Youtube

Linking Revit Models Youtube
Linking Revit Models Youtube

Linking Revit Models Youtube About press copyright contact us creators advertise developers terms privacy policy & safety how works test new features nfl sunday ticket © 2024 google llc. In this video i show you how to use revit link for a faster and easy workflow.

Using Revitlink Youtube
Using Revitlink Youtube

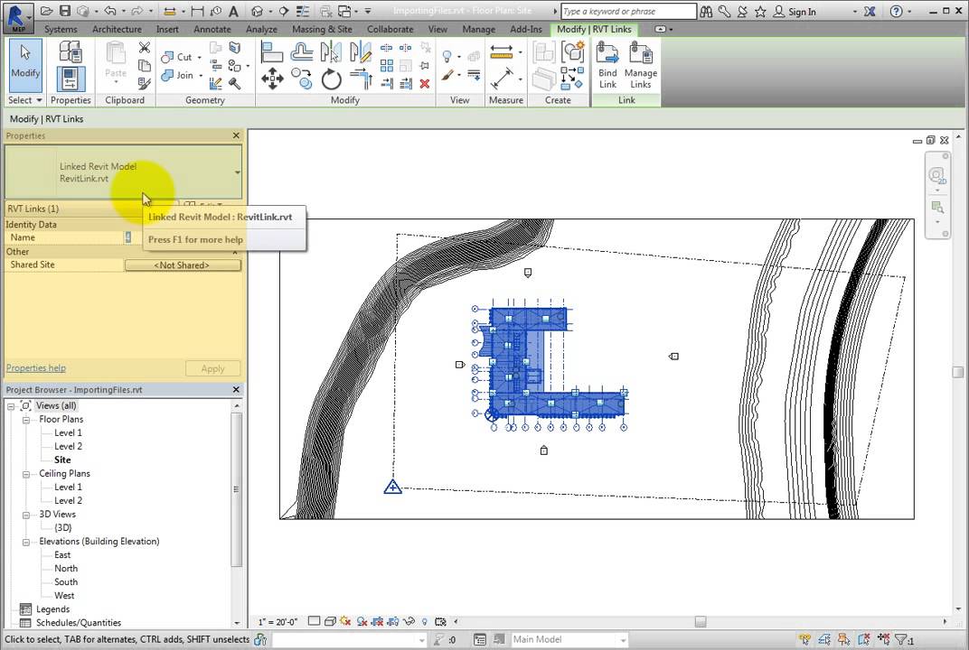
Using Revitlink Youtube Learn how to easily import and explode a revit project file using the link revit feature!. Learn how to seamlessly integrate external models into your revit project to enhance collaboration and streamline the design process. follow along and discover the power of linking models in. In the vlog we’re going to look at how to work with links in revit 2026. i’ll show you how to link both cad drawings and revit models into your project, and then we’ll explore how to manage those links using tools like reload, reload from, show link in model, unload, and remove. Manage link options so that models update when links need reloading. was this information helpful?.

Managing Linked Revit Models Youtube
Managing Linked Revit Models Youtube

Managing Linked Revit Models Youtube In the vlog we’re going to look at how to work with links in revit 2026. i’ll show you how to link both cad drawings and revit models into your project, and then we’ll explore how to manage those links using tools like reload, reload from, show link in model, unload, and remove. Manage link options so that models update when links need reloading. was this information helpful?. Link models to coordinate the design when collaborating across disciplines. this video demonstrates the following: understand the purpose of linked models. link a model in a project. align positioning of the models. update and tag elements in linked models. note: this video was recorded using revit 2021. Discover the top channels that offer valuable tutorials and tips for mastering revit, the popular bim software used in architecture and construction. In this full course, you’ll learn how to work with a linked architectural model and confidently model your structure from start to finish. Learn how to insert a revit link. this way the engineer has an architectural model.

Link File In Revit Youtube
Link File In Revit Youtube

Link File In Revit Youtube Link models to coordinate the design when collaborating across disciplines. this video demonstrates the following: understand the purpose of linked models. link a model in a project. align positioning of the models. update and tag elements in linked models. note: this video was recorded using revit 2021. Discover the top channels that offer valuable tutorials and tips for mastering revit, the popular bim software used in architecture and construction. In this full course, you’ll learn how to work with a linked architectural model and confidently model your structure from start to finish. Learn how to insert a revit link. this way the engineer has an architectural model.

Comments are closed.