Simplify your online presence. Elevate your brand.

Projeto Radier 1 Pdf Materiais De Construcao Materiais

Projeto Radier 1 Pdf Materiais De Construção Materiais
Projeto Radier 1 Pdf Materiais De Construção Materiais

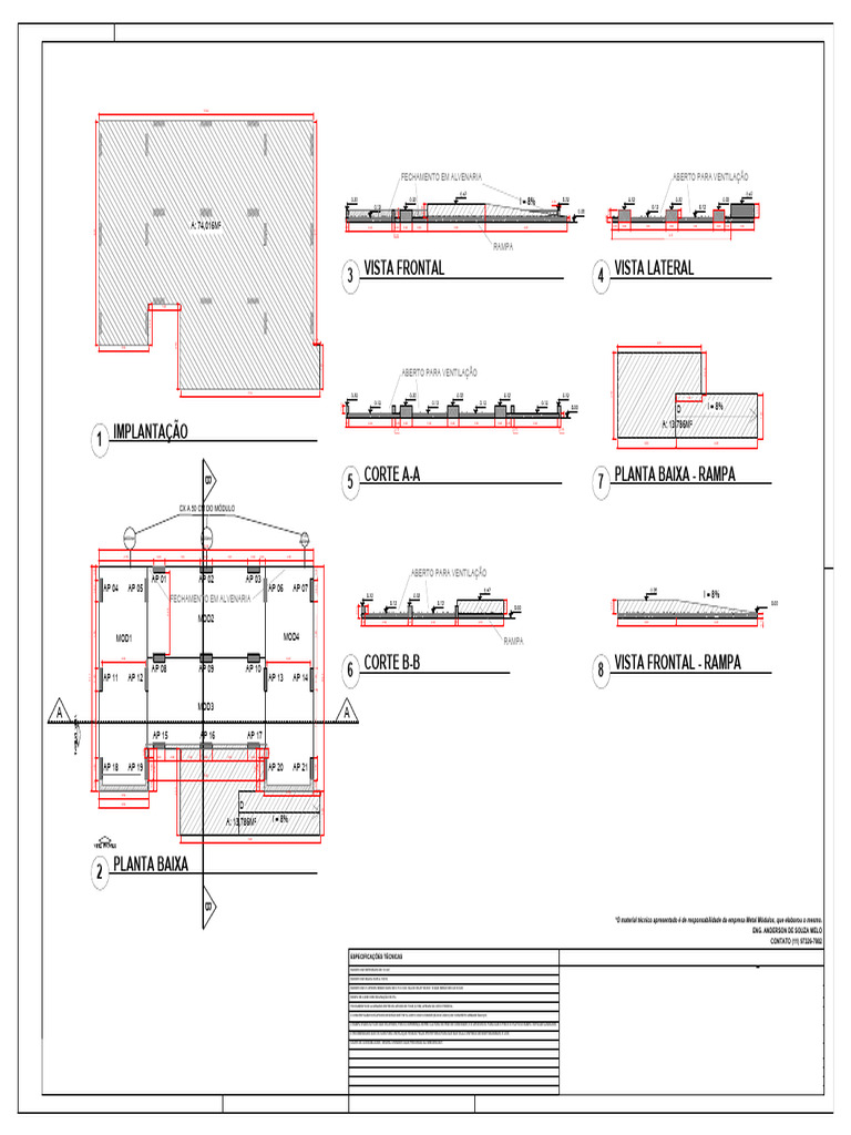
Projeto Radier 1 Pdf Materiais De Construção Materiais O documento detalha os materiais, equipamentos e etapas de execução necessários para cada tipo de radier, além de abordar suas características e custos relativamente baixos. Documento técnico sobre projeto, análise e dimensionamento de radiers para pequenas construções. inclui tipos, métodos e soluções simplificadas.

Pdf Projeto De Estrutura De Fundação Em Concreto Do Tipo Radier
Pdf Projeto De Estrutura De Fundação Em Concreto Do Tipo Radier

Pdf Projeto De Estrutura De Fundação Em Concreto Do Tipo Radier Projeto estrutural concreto radier 1 estru radier reser.inferiores r00 v119 60 l1. No presente capítulo serão apresentados alguns critérios de projeto de fundação do tipo radier, bem como vantagens, materiais utilizados e recomendações construtivas. O objetivo deste estudo é apresentar características de análise estrutural de fundações do tipo radier em concreto armado para habitações de interesse social. Presente artigo discorre sobre o pro jeto estrutural e o estudo térmico de um ra dier de grandes dimensões (36 m x 33 m e altura de 2,8 m no trecho mais alto), que uti lizou 2986,8 m3 e 292,6 ton de aço ca 50.

Clube Do Concreto Radier Projetos
Clube Do Concreto Radier Projetos

Clube Do Concreto Radier Projetos O objetivo deste estudo é apresentar características de análise estrutural de fundações do tipo radier em concreto armado para habitações de interesse social. Presente artigo discorre sobre o pro jeto estrutural e o estudo térmico de um ra dier de grandes dimensões (36 m x 33 m e altura de 2,8 m no trecho mais alto), que uti lizou 2986,8 m3 e 292,6 ton de aço ca 50. Estudos do solo para determinação de sua capacidade e melhoria; definição dos materiais do radier; dimensionamento de radier em concreto simples – recomendações da nbr 6118 14. Notas: fundaÇÃo tipo radier 0 solo deve estar livre de matacÔes ou blxos que possam ocasionar recwque diferencial na estruturÁ deverÁ garantir o nÍvel oos pwtÔs, o solo deverÁ ser compactado mecÁnicamente atÍ atinsr a taxa mÍnima de 95% 00 pn. Este artículo lleva a cabo un estudio de la protección estatutaria que, en algunos aspectos, es bastante similar a la de nuestro estatuto; sin embargo, en otros no hay parangón alguno, permitiéndose despidos que en nuestro ordenamiento serían nulos. O intuito desse estudo é trazer uma comparação entre fundações radier e outros tipos, informando seu lado positivo e negativo, mostrando a economia em seus materiais, tempo de aplicação, tempo de execução e sua resistência.

Radier O Que é
Radier O Que é

Radier O Que é Estudos do solo para determinação de sua capacidade e melhoria; definição dos materiais do radier; dimensionamento de radier em concreto simples – recomendações da nbr 6118 14. Notas: fundaÇÃo tipo radier 0 solo deve estar livre de matacÔes ou blxos que possam ocasionar recwque diferencial na estruturÁ deverÁ garantir o nÍvel oos pwtÔs, o solo deverÁ ser compactado mecÁnicamente atÍ atinsr a taxa mÍnima de 95% 00 pn. Este artículo lleva a cabo un estudio de la protección estatutaria que, en algunos aspectos, es bastante similar a la de nuestro estatuto; sin embargo, en otros no hay parangón alguno, permitiéndose despidos que en nuestro ordenamiento serían nulos. O intuito desse estudo é trazer uma comparação entre fundações radier e outros tipos, informando seu lado positivo e negativo, mostrando a economia em seus materiais, tempo de aplicação, tempo de execução e sua resistência.

Comments are closed.