Simplify your online presence. Elevate your brand.

Planos Estructurales De Una Edificacion Pdf

Planos Estructurales De Una Edificación Pdf
Planos Estructurales De Una Edificación Pdf

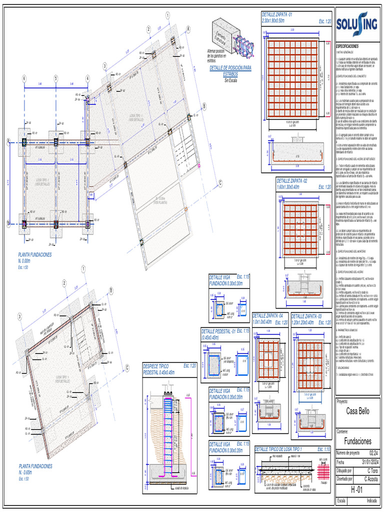
Planos Estructurales De Una Edificación Pdf Este documento explica los diferentes tipos de planos estructurales necesarios para la construcción de un edificio, incluyendo planos de fundaciones y columnas, ejes de construcción, vistas de planta y perfil de fundaciones, columnas y vigas. Planos estructurales de elementos críticos del nuevo edificio; losa; viga; columna; fundaciones.

Planos Estructurales De Una Edificación De 9 Niveles Pdf
Planos Estructurales De Una Edificación De 9 Niveles Pdf

Planos Estructurales De Una Edificación De 9 Niveles Pdf Al igual que en la parte arquitectónica, el conjunto de planos estructurales, está compuesto por una serie de dibujos que representan las diferentes posiciones del observador con respecto a la estructura o esqueleto que sostiene el edificio. Incluye plantas estruturales de primer nivel y planta tipo, y detalles estructurales, despiece de hierros, detalles de tanque de edificio residencial. Esta serie de planos reúne la información completa de un proyecto habitacional, incluyendo las plantas arquitectónicas, cortes, fachadas, detalles estructurales y planos de instalaciones (hidrosanitarias y eléctricas). El objetivo de este trabajo final de grado consiste en el diseño, cálculo y análisis de la estructura de una edificación, cumpliendo en todo momento con la normativa establecida.

1 Edificacion Da Pdf Ingeniería Estructural Ingeniería De Edificación
1 Edificacion Da Pdf Ingeniería Estructural Ingeniería De Edificación

1 Edificacion Da Pdf Ingeniería Estructural Ingeniería De Edificación Esta serie de planos reúne la información completa de un proyecto habitacional, incluyendo las plantas arquitectónicas, cortes, fachadas, detalles estructurales y planos de instalaciones (hidrosanitarias y eléctricas). El objetivo de este trabajo final de grado consiste en el diseño, cálculo y análisis de la estructura de una edificación, cumpliendo en todo momento con la normativa establecida. Son textos y o esquemas gráficos que indican especificaciones o procedimientos constructivos. Resumen presente tesis tiene como objetivo el análisis y diseño estructural de una edificación de niveles destinado para viviendas, ubicado en el distrito de san isidro, provincia de lima. el el tipo de la zona es una grava densa, la cual posee una capacidad portante de 4 kg cm2. según el. Loading…. Los planos estructurales requeridos son: planta de fundaciones, base de pavimento, detalles de columnas, vigas de piso y techo, y losa de piso y techo. descargar en pdf o ver en línea gratis.

Planos Estructurales Pdf
Planos Estructurales Pdf

Planos Estructurales Pdf Son textos y o esquemas gráficos que indican especificaciones o procedimientos constructivos. Resumen presente tesis tiene como objetivo el análisis y diseño estructural de una edificación de niveles destinado para viviendas, ubicado en el distrito de san isidro, provincia de lima. el el tipo de la zona es una grava densa, la cual posee una capacidad portante de 4 kg cm2. según el. Loading…. Los planos estructurales requeridos son: planta de fundaciones, base de pavimento, detalles de columnas, vigas de piso y techo, y losa de piso y techo. descargar en pdf o ver en línea gratis.

Planos Estructurales 4 Pdf
Planos Estructurales 4 Pdf

Planos Estructurales 4 Pdf Loading…. Los planos estructurales requeridos son: planta de fundaciones, base de pavimento, detalles de columnas, vigas de piso y techo, y losa de piso y techo. descargar en pdf o ver en línea gratis.

Planos Estructurales Pdf Hormigón Ingeniería De Edificación
Planos Estructurales Pdf Hormigón Ingeniería De Edificación

Planos Estructurales Pdf Hormigón Ingeniería De Edificación

Comments are closed.