Simplify your online presence. Elevate your brand.

Pdf On Structural Design Of Steel Roof Truss Geometry Used In Factory

Example Design Of Steel Roof Truss Filetype Pdf Pdf Truss Roof
Example Design Of Steel Roof Truss Filetype Pdf Pdf Truss Roof

Example Design Of Steel Roof Truss Filetype Pdf Pdf Truss Roof Hence this paper aims to study the design and analysis of different types of truss geometries used in a factory shed using commercial well established software package staad pro v8i. The practical design guidelines along with the best choice of roof trusses are highlighted in the results and discussions section of this paper.

Design Of Steel Truss Roof Structure Pdf Truss Structural Load
Design Of Steel Truss Roof Structure Pdf Truss Structural Load

Design Of Steel Truss Roof Structure Pdf Truss Structural Load The practical design guidelines along with the best choice of roof trusses are highlighted in the results and discussions section of this paper. Hence this paper aims to study the design and analysis of different types of truss geometries used in a factory shed using commercial well established software package staad pro v8i. The document provides specifications and guidelines for designing steel trusses. it discusses truss geometry, components, loads to apply, and provides an example calculation of loads on a truss. The document provides a detailed guide on the structural design of steel trusses and gantry girders, covering aspects such as selection, design calculations for moment capacity and load assessments including dead, live, and wind loads.

Design Of A Steel Roof Truss Pdf Truss Beam Structure
Design Of A Steel Roof Truss Pdf Truss Beam Structure

Design Of A Steel Roof Truss Pdf Truss Beam Structure The document provides specifications and guidelines for designing steel trusses. it discusses truss geometry, components, loads to apply, and provides an example calculation of loads on a truss. The document provides a detailed guide on the structural design of steel trusses and gantry girders, covering aspects such as selection, design calculations for moment capacity and load assessments including dead, live, and wind loads. In this paper, the design of roof trusses frame, rivet diameters, and area of all members have to be calculated. For providing a complete guideline to the students, basic design concepts of roof truss and plate girder are elaborated with examples and detailed drawings in this manual. The present work includes designing roof truss components for an industrial building using conventional steel sections and tubular steel sections (circular hollow section) and selecting most suitable section according to its advantages and disadvantages. Trusses are used in roofs of single storey industrial buildings, long span floors and roofs of multi story buildings, to resist gravity loads. the advantage of using steel trusses for building is that they are stronger than wood and greater open space inside a building is possible.

Design And Behavior Of 2d Steel Trusses Pdf Truss Mechanical
Design And Behavior Of 2d Steel Trusses Pdf Truss Mechanical

Design And Behavior Of 2d Steel Trusses Pdf Truss Mechanical In this paper, the design of roof trusses frame, rivet diameters, and area of all members have to be calculated. For providing a complete guideline to the students, basic design concepts of roof truss and plate girder are elaborated with examples and detailed drawings in this manual. The present work includes designing roof truss components for an industrial building using conventional steel sections and tubular steel sections (circular hollow section) and selecting most suitable section according to its advantages and disadvantages. Trusses are used in roofs of single storey industrial buildings, long span floors and roofs of multi story buildings, to resist gravity loads. the advantage of using steel trusses for building is that they are stronger than wood and greater open space inside a building is possible.

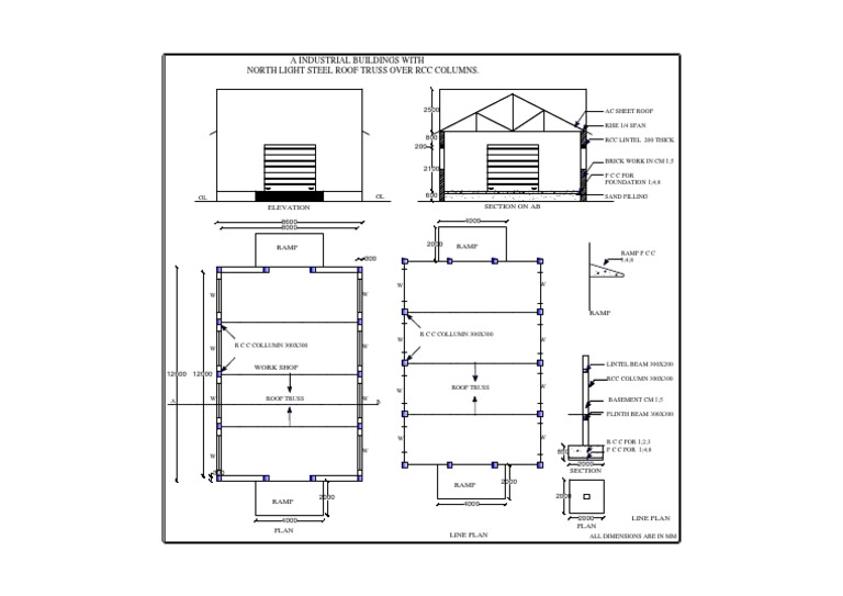
Industrial Building Steel Roof Truss Model Pdf Column Components
Industrial Building Steel Roof Truss Model Pdf Column Components

Industrial Building Steel Roof Truss Model Pdf Column Components The present work includes designing roof truss components for an industrial building using conventional steel sections and tubular steel sections (circular hollow section) and selecting most suitable section according to its advantages and disadvantages. Trusses are used in roofs of single storey industrial buildings, long span floors and roofs of multi story buildings, to resist gravity loads. the advantage of using steel trusses for building is that they are stronger than wood and greater open space inside a building is possible.

Steel Truss 1 Pdf
Steel Truss 1 Pdf

Steel Truss 1 Pdf

Comments are closed.