Simplify your online presence. Elevate your brand.

Parking Area Plan Pdf

Parking Design Garage Design Floor Plan Design
Parking Design Garage Design Floor Plan Design

Parking Design Garage Design Floor Plan Design Poorly designed parking lots can cause congestion, unsafe conditions, and inefficient layouts. this guide provides a concise, practical reference for architects, engineers, and urban planners to apply good parking standards in their designs. This document provides guidelines for parking lot design, including general considerations, planning, parking angles, space dimensions, construction practices, and drainage.

Parking Area Plan Pdf
Parking Area Plan Pdf

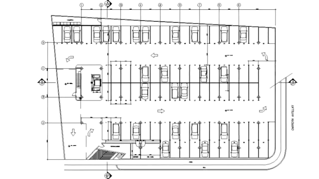
Parking Area Plan Pdf A comprehensive parking study usually involves (1) inventory of existing parking facilities, (2) collection of data on parking accumulation, parking turnover and parking duration, (3) identification of parking generators, and (4) collection of information on parking demand. The information in this chapter will provide a general guide to proper parking area design, construction, and facility layout. minimum pavement thickness designs are given for various size parking lots, heavily loaded areas, and industrial parking lots. This document has been developed for the capital city development corporation as a guide for future parking structure design in downtown boise. it contains information to help developers and designers incorporate parking structure components into proposed projects. The parking layout should provide continuous flow of traffic through the lot. there must be safe pedestrian movement from parking to buildings. the design should allow for appropriate landscaping of the parking areas without conflicting with site lighting.

Free Parking Floor Plan Cad Drawing Dwg Dxf Pdf Format Freecads
Free Parking Floor Plan Cad Drawing Dwg Dxf Pdf Format Freecads

Free Parking Floor Plan Cad Drawing Dwg Dxf Pdf Format Freecads This document has been developed for the capital city development corporation as a guide for future parking structure design in downtown boise. it contains information to help developers and designers incorporate parking structure components into proposed projects. The parking layout should provide continuous flow of traffic through the lot. there must be safe pedestrian movement from parking to buildings. the design should allow for appropriate landscaping of the parking areas without conflicting with site lighting. These criteria include recommendations for the design of entrances and exits, vehicle circulation path, parking space dimensions, pavement thickness, etc. this chapter also includes site requirements for items such as number of parking spaces, landscaping, parking setback, etc. See see granite granite canyon canyon trailhead trailhead scale: scale: 1 1 layout layout plan plan sheet sheet 2 2 of of 2 2 existing existing trail trail g097 g097 sidewalk, sidewalk, aggregate, aggregate, 6 inch 6 inch compacted compacted depth depth. Parking lots, open areas designated for vehicle parking, are crucial in urban planning, accommodating vehicles in commercial, residential, and public spaces. a well designed layout maximizes the number of parking spaces while ensuring easy maneuverability and pedestrian safety. Design parameters dimensions of parking spaces location of parking spaces form maneuver vehicles in line with maximum widths of inputs and outputs widths minimum of inputs and outputs inputs and outputs combined minimum number of parking tickets minimum distance from entrances and exits earrings home corners ramps ramps wide aisles internal.

Comments are closed.