Simplify your online presence. Elevate your brand.

Krishenry Master Suite Layout Considerations

Master Suite Layout
Master Suite Layout

Master Suite Layout Quick discussion of design tradeoffs for the different master suite layouts being considered. Turn your master bedroom into the ultimate retreat with lighting, layout, color ideas, furniture tips, and more. create walk in wardrobes, sumptuous showers, and cozy places to curl up in. use cedreo, an easy to use online design tool, to create stunning master suite floor plans in 2d and 3d.

Master Suite Layout For Apartment
Master Suite Layout For Apartment

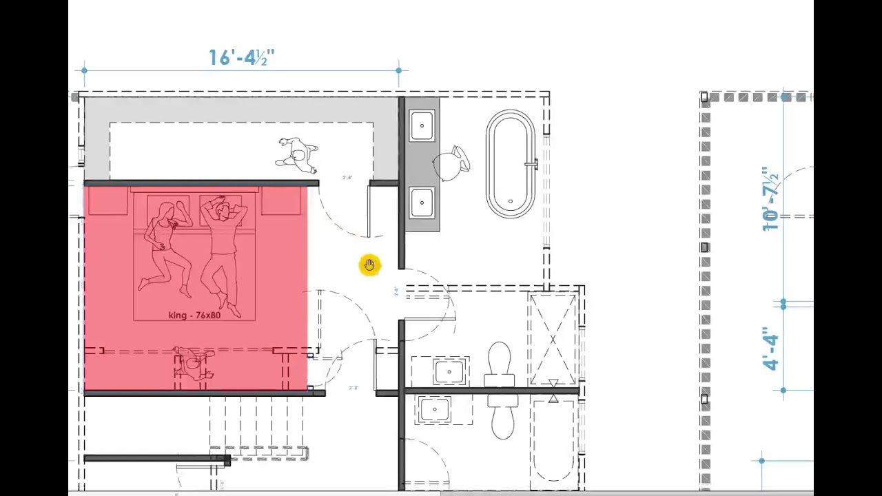
Master Suite Layout For Apartment You’re likely going to want to spend a lot of time in your master suite so it’s important that you take the time to design the layout appropriately. one of the best ways to approach designing a layout for your master suite floor plan is to limit the number of furnishings, patterns, and accessories. The large master bath layout has moved from a size upgrade to a design category with its own spatial logic and occupant expectations. a large bathroom floor plan gives designers the floor space to separate wet zones from dry zones in ways a standard bath simply can’t support. Here's how to plan better master suite additions to land more clients. get layout tips, design ideas & cost ranges to make master bedrooms clients love!. Welcome to the world of master suites, where comfort meets luxury in the most personal space of your home. let’s explore some inspiring floor plan ideas that can transform your master suite into a sanctuary.

Master Bedroom Suite Layouts
Master Bedroom Suite Layouts

Master Bedroom Suite Layouts Here's how to plan better master suite additions to land more clients. get layout tips, design ideas & cost ranges to make master bedrooms clients love!. Welcome to the world of master suites, where comfort meets luxury in the most personal space of your home. let’s explore some inspiring floor plan ideas that can transform your master suite into a sanctuary. Creating distinct zones within the suite, such as a private sleeping area separated from a dressing area or a spa like bathroom, relies heavily on thoughtful spatial division and precise dimensional allocation to each function, resulting in a cohesive and highly functional personal retreat. This article will delve into the key aspects of master suite floor plans with dimensions, outlining the essential components, considerations, and benefits of thoroughly understanding them. Discover pinterest’s best ideas and inspiration for master suite layout floor plans. get inspired and try out new things. find and save ideas about master suite layout floor plans on pinterest. There are several common floor plan layouts for master suites, each offering distinct advantages and disadvantages depending on the available space and personal preferences.

Master Suite Layout
Master Suite Layout

Master Suite Layout Creating distinct zones within the suite, such as a private sleeping area separated from a dressing area or a spa like bathroom, relies heavily on thoughtful spatial division and precise dimensional allocation to each function, resulting in a cohesive and highly functional personal retreat. This article will delve into the key aspects of master suite floor plans with dimensions, outlining the essential components, considerations, and benefits of thoroughly understanding them. Discover pinterest’s best ideas and inspiration for master suite layout floor plans. get inspired and try out new things. find and save ideas about master suite layout floor plans on pinterest. There are several common floor plan layouts for master suites, each offering distinct advantages and disadvantages depending on the available space and personal preferences.

23 Master Suite Layout Ideas In 2025 Master Suite Layout Master
23 Master Suite Layout Ideas In 2025 Master Suite Layout Master

23 Master Suite Layout Ideas In 2025 Master Suite Layout Master Discover pinterest’s best ideas and inspiration for master suite layout floor plans. get inspired and try out new things. find and save ideas about master suite layout floor plans on pinterest. There are several common floor plan layouts for master suites, each offering distinct advantages and disadvantages depending on the available space and personal preferences.

Comments are closed.