Simplify your online presence. Elevate your brand.

Idecad Structural Optimize The Structural Model Structural Bim Software

Idecad Structural Download Idecad Structural Is An Integrated
Idecad Structural Download Idecad Structural Is An Integrated

Idecad Structural Download Idecad Structural Is An Integrated Download idecad structural and learn how structural bim delivers optimized, coordinated structural analysis, structural designs, and structural detailing faster. Master the complete workflow of building design using idecad structural, a powerful bim based structural engineering software.

Structural Design
Structural Design

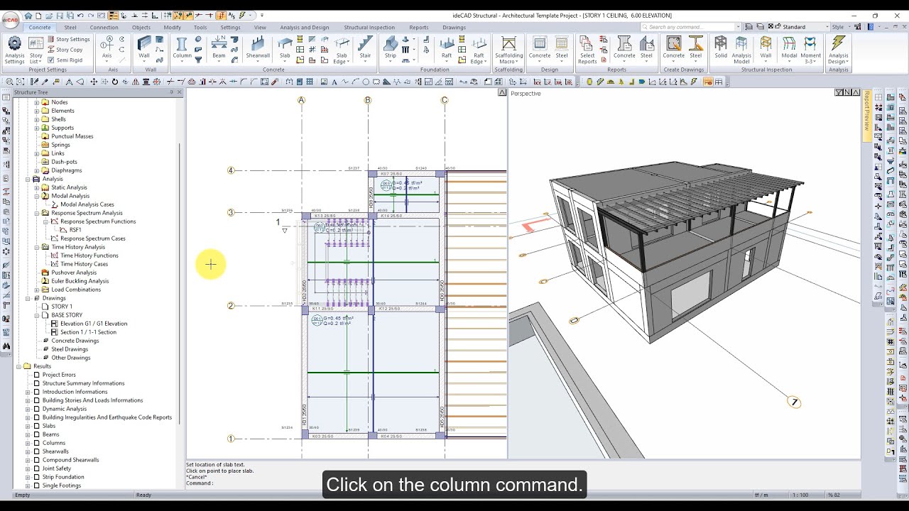
Structural Design Idecad is a comprehensive building information modeling (bim) software solution designed for architects and structural engineers. it streamlines the entire project lifecycle, from initial architectural design and 3d modeling to detailed struct. Structural analysis with idecad is the leading collaborative structural bim software, including aec collection tools for architecture, engineering, and construction. Idecad gives you a unified environment for structural modeling, analysis and design of concrete and steel structures. you get integrated workflows for model creation, calculation checks, automated drawings and quantity take offs. In this video, discover how idecad structural enhances efficiency, accuracy, and collaboration throughout structural design projects.

Structural Design Software Including Analysis Detailing
Structural Design Software Including Analysis Detailing

Structural Design Software Including Analysis Detailing Idecad gives you a unified environment for structural modeling, analysis and design of concrete and steel structures. you get integrated workflows for model creation, calculation checks, automated drawings and quantity take offs. In this video, discover how idecad structural enhances efficiency, accuracy, and collaboration throughout structural design projects. Idecad is a software solution that combines architectural and structural design processes into a single, unified platform. this means architects and structural engineers can work together seamlessly on the same building model in real time. With its building information modeling (bim) capabilities, idecad streamlines projects by allowing integrated architectural and structural design, analysis, and detailing within a single model. Idecad is a robust building information modeling (bim) software designed to support architects, engineers, and construction professionals in creating detailed building models and structural designs. By linking architectural and structural data in a shared model, idecad streamlines workflows and reduces errors associated with data exchange between teams. the software aims to optimize constructability and project coordination with integrated detailing tools for major structural materials.

All In One Bim Software For Building Design Idecad One
All In One Bim Software For Building Design Idecad One

All In One Bim Software For Building Design Idecad One Idecad is a software solution that combines architectural and structural design processes into a single, unified platform. this means architects and structural engineers can work together seamlessly on the same building model in real time. With its building information modeling (bim) capabilities, idecad streamlines projects by allowing integrated architectural and structural design, analysis, and detailing within a single model. Idecad is a robust building information modeling (bim) software designed to support architects, engineers, and construction professionals in creating detailed building models and structural designs. By linking architectural and structural data in a shared model, idecad streamlines workflows and reduces errors associated with data exchange between teams. the software aims to optimize constructability and project coordination with integrated detailing tools for major structural materials.

Comments are closed.