Simplify your online presence. Elevate your brand.

Gambar Kerja Garasi Mobil 23012020 Pdf

Gambar Kerja Garasi Mobil 23012020 Pdf
Gambar Kerja Garasi Mobil 23012020 Pdf

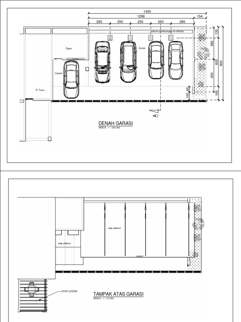
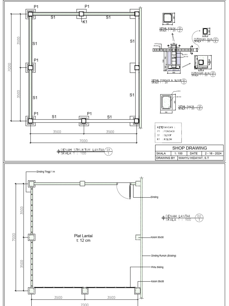
Gambar Kerja Garasi Mobil 23012020 Pdf Gambar kerja garasi mobil (23012020) free download as pdf file (.pdf), text file (.txt) or view presentation slides online. the document contains drawings and details of a garage structure. Gambar kerja garasi dokumen ini berisi beberapa denah dan detail struktur untuk proyek rumah tinggal dengan nomor proyek 2025 000 xxxx xxxx. terdapat berbagai skala dan informasi mengenai elemen struktural seperti kolom, balok, dan pondasi. semua gambar dan detail dirancang untuk memberikan panduan dalam pembangunan proyek tersebut.

Gambar Kerja Garasi Rumah Pdf
Gambar Kerja Garasi Rumah Pdf

Gambar Kerja Garasi Rumah Pdf Dokumen ini memberikan informasi tentang desain garasi yang terdiri dari atap alderon, carport, dan dapur. terdapat empat gambar yang menunjukkan denah, tampak depan, samping, dan potongan garasi beserta ukuran dan bahan konstruksinya. The document contains diagrams and drawings of a garage including floor plans, ceiling plans, elevations and perspectives. measurements and materials are noted on the various diagrams. Membuat gambar gambar yang sesuai dengan pelaksanaan di lapangan (as built drawings) yang selesai sebelum serah terima i (pertama), setelah disetujui oleh konsultan manajemen konstruksi atau konsultan pengawas konstruksi dan diketahui oleh konsultan perencana konstruksi. Berikut ini beberapa contoh gambar garasi mobil minimalis, baik dengan desain yang sederhana maupun mewah. kamu bisa lihat lihat dulu deh, siapa tahu bisa menemukan ide untuk mendesain garasi di rumah kamu sendiri.

Detail Gambar Mobil Dalam Garasi Koleksi Nomer 31
Detail Gambar Mobil Dalam Garasi Koleksi Nomer 31

Detail Gambar Mobil Dalam Garasi Koleksi Nomer 31 Membuat gambar gambar yang sesuai dengan pelaksanaan di lapangan (as built drawings) yang selesai sebelum serah terima i (pertama), setelah disetujui oleh konsultan manajemen konstruksi atau konsultan pengawas konstruksi dan diketahui oleh konsultan perencana konstruksi. Berikut ini beberapa contoh gambar garasi mobil minimalis, baik dengan desain yang sederhana maupun mewah. kamu bisa lihat lihat dulu deh, siapa tahu bisa menemukan ide untuk mendesain garasi di rumah kamu sendiri. Teknologi ini telah banyak di gunakan di berbagai bidang salah satunya adalah penendalian pintu garasi. pengontrolan seperti ini biasa digunakan untuk mengontrol pintu garasi yang bisa membuka dan menutup dengan pengontrolan jarak jauh. pengontrolan pintu ini menggunakan komunikasi antar xbee, untuk menggunakan xbee harus terdapat buah xbee. Mendesain garasi rumah dengan mobil lebih dari satu memang tidak selalu mudah. yuk, temukan inspirasi desain garasi 2 mobil berikut ini!. Mengakses (garasi): unduh, gambar cad, autocad, dwg, arsitektur, perangkat lunak cad. Temukan 1000 inspirasi desain garasi model terbaru, terkini, dan terbaik karya emporio architect. desain garasi adalah proses merencanakan dan menciptakan ruang yang dirancang khusus untuk menyimpan kendaraan, alat, serta barang barang lainnya yang seringkali tidak memiliki tempat di dalam rumah.

Comments are closed.