Simplify your online presence. Elevate your brand.

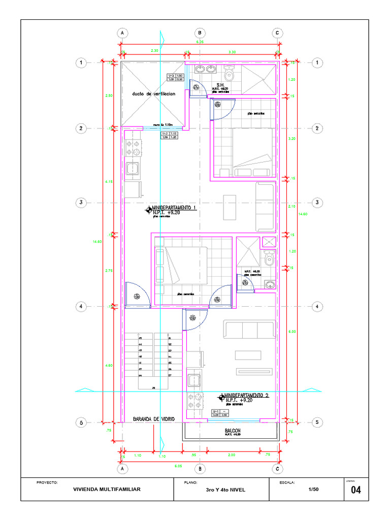
Edificio Lavalle Piso 3 Y 4

Piso 3 Y 4 Pdf
Piso 3 Y 4 Pdf

Piso 3 Y 4 Pdf About press copyright contact us creators advertise developers terms privacy policy & safety how works test new features nfl sunday ticket © 2024 google llc. Find local businesses, view maps and get driving directions in google maps.

Galería De Edificio En Calle Lavalle Biagioni Pecorari Arquitectos 17
Galería De Edificio En Calle Lavalle Biagioni Pecorari Arquitectos 17

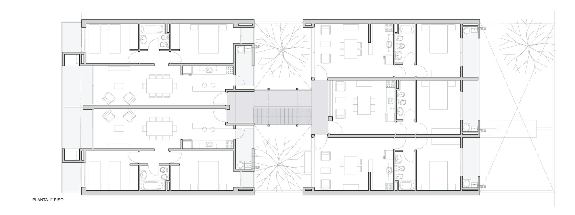
Galería De Edificio En Calle Lavalle Biagioni Pecorari Arquitectos 17 Este innovador desarrollo ha sido diseñado para ofrecer una experiencia de vida única. en sus pisos superiores, el edificio albergará modernos departamentos de 2 y 3 ambientes, brindando opciones flexibles que se adaptan a las necesidades de cada residente. Cada rincón de este proyecto ha sido desarrollado con materiales de primera categoría y un diseño arquitectónico que prioriza la luz natural, la amplitud y la comodidad. Presentamos este nuevo proyecto ubicado en la calle gral. lavalle, altura 1049, entre piran y fraggio. este emprendimiento se ha diseñado para ofrecer una experiencia de vida excepcional. Este departamento ha sido diseñado para brindarte amplitud, luz natural y eficiencia en cada detalle. su distribución optimiza los espacios, creando un ambiente moderno y funcional. grandes ventanales de piso a techo que llenan los ambientes de luz y brindan vistas abiertas.

Edificio Lavalle Sagg Arquitectura On Behance
Edificio Lavalle Sagg Arquitectura On Behance

Edificio Lavalle Sagg Arquitectura On Behance Presentamos este nuevo proyecto ubicado en la calle gral. lavalle, altura 1049, entre piran y fraggio. este emprendimiento se ha diseñado para ofrecer una experiencia de vida excepcional. Este departamento ha sido diseñado para brindarte amplitud, luz natural y eficiencia en cada detalle. su distribución optimiza los espacios, creando un ambiente moderno y funcional. grandes ventanales de piso a techo que llenan los ambientes de luz y brindan vistas abiertas. Lavalle 3 es un desarrollo de antú constructora, reconocido por su diseño moderno, calidad constructiva y más de 20 edificios desarrollados en zona oeste. este emprendimiento se ubica frente al complejo torres lavalle, en pleno ituzaingó norte. Presentamos este nuevo proyecto ubicado en la calle gral. lavalle, altura 1049, entre piran y fraggio. este emprendimiento se ha diseñado para ofrecer una experiencia de vida excepcional. en sus pisos superiores, el edificio contará con departamentos de 2 y 3 ambientes, brindando opciones flexibles y adaptadas a las necesidades de los residentes,. Nuestro enfoque en este proyecto ha sido la combinación de materiales crudos y naturales, creando un equilibrio entre hormigón y ladrillo visto. esta fusión ha dado lugar a diferentes planos en forma de tira, con aberturas de piso a techo que ofrecen vistas panorámicas hacia el exterior. Emprendimiento en el corazón de ramos mejía edificio de 17 departamentos, de 2 y 3 ambientes. 1 2.

Edificio Lavalle Sagg Arquitectura On Behance
Edificio Lavalle Sagg Arquitectura On Behance

Edificio Lavalle Sagg Arquitectura On Behance Lavalle 3 es un desarrollo de antú constructora, reconocido por su diseño moderno, calidad constructiva y más de 20 edificios desarrollados en zona oeste. este emprendimiento se ubica frente al complejo torres lavalle, en pleno ituzaingó norte. Presentamos este nuevo proyecto ubicado en la calle gral. lavalle, altura 1049, entre piran y fraggio. este emprendimiento se ha diseñado para ofrecer una experiencia de vida excepcional. en sus pisos superiores, el edificio contará con departamentos de 2 y 3 ambientes, brindando opciones flexibles y adaptadas a las necesidades de los residentes,. Nuestro enfoque en este proyecto ha sido la combinación de materiales crudos y naturales, creando un equilibrio entre hormigón y ladrillo visto. esta fusión ha dado lugar a diferentes planos en forma de tira, con aberturas de piso a techo que ofrecen vistas panorámicas hacia el exterior. Emprendimiento en el corazón de ramos mejía edificio de 17 departamentos, de 2 y 3 ambientes. 1 2.

Edificio Lavalle Sagg Arquitectura On Behance
Edificio Lavalle Sagg Arquitectura On Behance

Edificio Lavalle Sagg Arquitectura On Behance Nuestro enfoque en este proyecto ha sido la combinación de materiales crudos y naturales, creando un equilibrio entre hormigón y ladrillo visto. esta fusión ha dado lugar a diferentes planos en forma de tira, con aberturas de piso a techo que ofrecen vistas panorámicas hacia el exterior. Emprendimiento en el corazón de ramos mejía edificio de 17 departamentos, de 2 y 3 ambientes. 1 2.

Comments are closed.