Simplify your online presence. Elevate your brand.

2d Prototype One Bedroom Flat Presentation Pdf

2d Prototype One Bedroom Flat Presentation Pdf
2d Prototype One Bedroom Flat Presentation Pdf

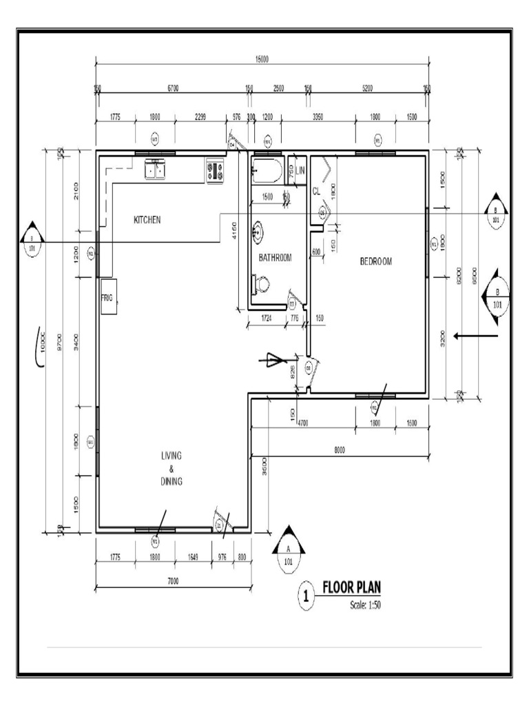
2d Prototype One Bedroom Flat Presentation Pdf 2d prototype one bedroom flat presentation free download as pdf file (.pdf), text file (.txt) or view presentation slides online. View 2d prototype one bedroom flat presentation 4 3.pdf from cs misc at our lady of fatima university. creating working drawings in autocad one bedroom flat created by: fernandez.

Creating Working Drawings In Autocad One Bedroom Flat Floor Plan
Creating Working Drawings In Autocad One Bedroom Flat Floor Plan

Creating Working Drawings In Autocad One Bedroom Flat Floor Plan A. b. was this document helpful? on studocu you find all the lecture notes, summaries and study guides you need to pass your exams with better grades. It outlines specific steps for designing architectural elements such as roof lines, wall elevations, and annotations, emphasizing drafting techniques, layer management, and the integration of text styles. 6. 2d prototype one bedroom flat presentation free download as pdf file (.pdf), text file (.txt) or view presentation slides online. the document provides instructions for creating a 2d prototype of a one bedroom flat in autocad. 2d prototype one bedroom flat presentation 4 3 free download as pdf file (.pdf), text file (.txt) or view presentation slides online. this document provides a comprehensive guide for creating working drawings of a one bedroom flat using autocad.

2d Prototype One Bedroom Flat Presentation 4 3 Pdf
2d Prototype One Bedroom Flat Presentation 4 3 Pdf

2d Prototype One Bedroom Flat Presentation 4 3 Pdf 6. 2d prototype one bedroom flat presentation free download as pdf file (.pdf), text file (.txt) or view presentation slides online. the document provides instructions for creating a 2d prototype of a one bedroom flat in autocad. 2d prototype one bedroom flat presentation 4 3 free download as pdf file (.pdf), text file (.txt) or view presentation slides online. this document provides a comprehensive guide for creating working drawings of a one bedroom flat using autocad. The document outlines the steps for creating a 2d autocad prototype for a one bedroom flat, including setting up drawing parameters, creating layers, and drawing walls. 6. 2d prototype one bedroom flat free download as pdf file (.pdf), text file (.txt) or view presentation slides online. The document outlines the steps for creating a 2d autocad prototype for a one bedroom flat, including setting up drawing parameters, creating layers, and drawing walls. The document lists 19 typical layers used in a 2d prototype drawing for a one bedroom flat, including layers for walls, doors, fixtures, text, windows, foundations, and more.

2d Prototype Formative One Bedroom Flat Utech Pdf
2d Prototype Formative One Bedroom Flat Utech Pdf

2d Prototype Formative One Bedroom Flat Utech Pdf The document outlines the steps for creating a 2d autocad prototype for a one bedroom flat, including setting up drawing parameters, creating layers, and drawing walls. 6. 2d prototype one bedroom flat free download as pdf file (.pdf), text file (.txt) or view presentation slides online. The document outlines the steps for creating a 2d autocad prototype for a one bedroom flat, including setting up drawing parameters, creating layers, and drawing walls. The document lists 19 typical layers used in a 2d prototype drawing for a one bedroom flat, including layers for walls, doors, fixtures, text, windows, foundations, and more.

Pdf Creating Working Drawings In Autocad One Bedroom Flat Created By
Pdf Creating Working Drawings In Autocad One Bedroom Flat Created By

Pdf Creating Working Drawings In Autocad One Bedroom Flat Created By The document outlines the steps for creating a 2d autocad prototype for a one bedroom flat, including setting up drawing parameters, creating layers, and drawing walls. The document lists 19 typical layers used in a 2d prototype drawing for a one bedroom flat, including layers for walls, doors, fixtures, text, windows, foundations, and more.

Comments are closed.