Simplify your online presence. Elevate your brand.

Planta Arquitectonica Ejes

Planta Arquitectonica Ejes Pdf
Planta Arquitectonica Ejes Pdf

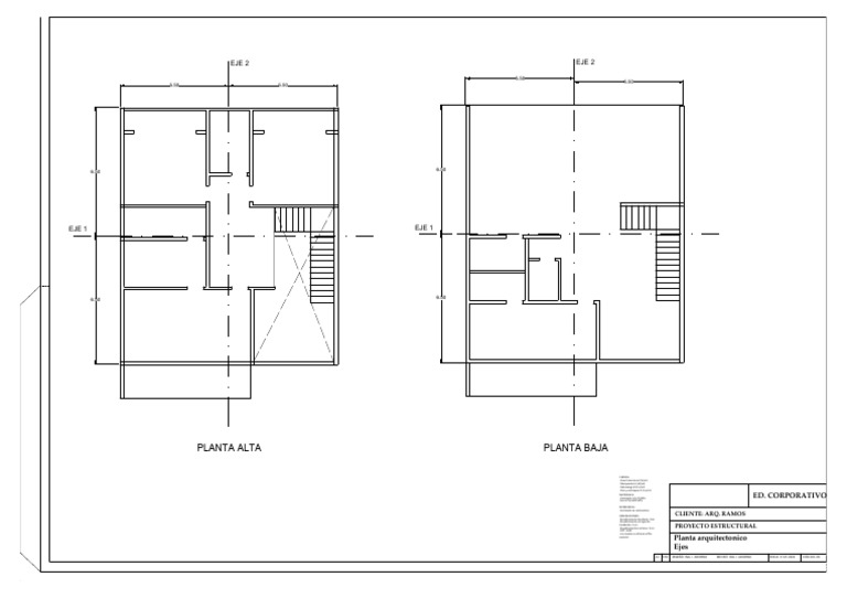
Planta Arquitectonica Ejes Pdf El documento detalla la ubicación de ejes en planos arquitectónicos, considerando elementos como simetría y equilibrio para organizar espacios. explica la importancia de los ejes en la distribución de columnas y muros, así como el predimensionamiento y características de losas con nervaduras. ¿qué son los “tipos de línea” en el dibujo arquitectónico? • la base del dibujo arquitectónico es la línea. y por ende al plano. línea de eje de muro estructural: divide el muro en dos partes. agudeza del tono y del grosor apropiado.

Ejes Planos Arquitectonicos
Ejes Planos Arquitectonicos

Ejes Planos Arquitectonicos La función de los ejes es ubicar los muros que tendrá nuestro proyecto ayudando con ello a ubicar elementos constructivos, se nombran por números y letras generalmente mayúsculas, que conforman un plano cartesiano. La eje arquitectura es un concepto fundamental en el diseño y planificación de espacios arquitectónicos. a menudo asociado con la organización espacial y la relación entre los elementos de una edificación, el eje arquitectónico permite estructurar visual y funcionalmente un proyecto. ¿cómo se representan los ejes en un plano arquitectonico? se representan con diseños variados de acuerdo al gusto del arquitecto y por lo general se encierra el número o letra, en un círculo y siempre serán la guía de un eje horizontal o vertical que ordena los muros de un proyecto arquitectónico. ¿qué es una planta arquitectónica y qué representa?.

Ejes Planos Arquitectonicos
Ejes Planos Arquitectonicos

Ejes Planos Arquitectonicos ¿cómo se representan los ejes en un plano arquitectonico? se representan con diseños variados de acuerdo al gusto del arquitecto y por lo general se encierra el número o letra, en un círculo y siempre serán la guía de un eje horizontal o vertical que ordena los muros de un proyecto arquitectónico. ¿qué es una planta arquitectónica y qué representa?. Planta arquitectonica: ejes de paredes cotas totales. cotas parciales entre ejes. proyección de techo o elementos superiores localización y dimensionamiento de columnas y elementos aislados. La planta arquitectónica se realizará en una casa habitación de un nivel, en donde conocerás cómo se representan los muros, ejes, cotas, niveles, cambios de nivel, y todos los elementos mínimos que se requieren para que la representación sea la adecuada. En este artículo, exploraremos diferentes ejemplos de ejes y su aplicación en la arquitectura moderna. los ejes son elementos fundamentales en el diseño arquitectónico, ya que brindan estructura, equilibrio y orientación a los espacios construidos. Ahora vamos a componer los frentes o elevaciones de estas arquitecturas.

Ubicación De Ejes En Un Plano Arquitectónico Bullet Journal
Ubicación De Ejes En Un Plano Arquitectónico Bullet Journal

Ubicación De Ejes En Un Plano Arquitectónico Bullet Journal Planta arquitectonica: ejes de paredes cotas totales. cotas parciales entre ejes. proyección de techo o elementos superiores localización y dimensionamiento de columnas y elementos aislados. La planta arquitectónica se realizará en una casa habitación de un nivel, en donde conocerás cómo se representan los muros, ejes, cotas, niveles, cambios de nivel, y todos los elementos mínimos que se requieren para que la representación sea la adecuada. En este artículo, exploraremos diferentes ejemplos de ejes y su aplicación en la arquitectura moderna. los ejes son elementos fundamentales en el diseño arquitectónico, ya que brindan estructura, equilibrio y orientación a los espacios construidos. Ahora vamos a componer los frentes o elevaciones de estas arquitecturas.

Planos Arquitectonicos Con Ejes
Planos Arquitectonicos Con Ejes

Planos Arquitectonicos Con Ejes En este artículo, exploraremos diferentes ejemplos de ejes y su aplicación en la arquitectura moderna. los ejes son elementos fundamentales en el diseño arquitectónico, ya que brindan estructura, equilibrio y orientación a los espacios construidos. Ahora vamos a componer los frentes o elevaciones de estas arquitecturas.

Comments are closed.