Simplify your online presence. Elevate your brand.

Fer Ferraillage Pieux Pdf

Ferraillage Radier Pieux 1 Objet Pdf
Ferraillage Radier Pieux 1 Objet Pdf

Ferraillage Radier Pieux 1 Objet Pdf Fer ferraillage pieux free download as pdf file (.pdf) or read online for free. Dans cette zone, le ferraillage peut différer du ferraillage courant du fait que les efforts sont généralement plus forts que les efforts calculés en zone éloignée des bords libres.

4 Exe Gc Goh Fer 9 1 B Goh78 Ferraillage Pieux Culée C1 Pdf
4 Exe Gc Goh Fer 9 1 B Goh78 Ferraillage Pieux Culée C1 Pdf

4 Exe Gc Goh Fer 9 1 B Goh78 Ferraillage Pieux Culée C1 Pdf Ferraillage pieux 60 pieu Ø600 à 10,50 m coupe longitudinale type detail ecarteur circulaire en beton Ø14cm pieux type cfa Ø600mm coupe a 1 0 555kb read more. Penelitian ini bertujuan untuk menganalisis pengaruh pemangkasan pucuk dan pemberian pupuk kimia terhadap peningkatan pertumbuhan tanaman kedelai. penelitian ini dilakukan di rumah plastik di desa demangan kecamatan sambi kabupaten boyolali pada bulan februari sampai mei 2022. Toutes les techniques de réalisation de pieux ne permettent pas un ferraillage toute hauteur. en cas de compression centrée, on peut ferrailler le pieu uniquement en partie supérieure. Ferraillage pieux du pont free download as pdf file (.pdf), text file (.txt) or read online for free.

La Phase De Ferraillage Des Pieux Béton Coulé Building Information
La Phase De Ferraillage Des Pieux Béton Coulé Building Information

La Phase De Ferraillage Des Pieux Béton Coulé Building Information Choisir la solution technique de fondation adéquate en fonction des spécificités d’un projet (techniques, coûts, délais) avoir une vision synthétique et claire des principales solutions de fondations par pieux et amélioration de sol. Dans ce dernier chapitre, nous allons étudier le ferraillage des éléments structuraux (pieux), il devra être conforme aux règlements en vigueur (bael 91, r.p.a.99 2003 et les règles ps92). Le document décrit un plan de ferraillage pour un pieu de diamètre 600mm. il contient des détails techniques sur la structure du pieu ainsi que sur la zone critique et la zone courante à une profondeur de 10,5m. Le document décrit les plans de ferraillage pour des pieux de construction d'un diamètre de 720 mm, avec des informations sur le nombre et le type d'armatures ainsi que leurs dimensions et espacements.

Tradimaisons Construit Ma Maison à Malintrat Puy De Dôme Ferraillage
Tradimaisons Construit Ma Maison à Malintrat Puy De Dôme Ferraillage

Tradimaisons Construit Ma Maison à Malintrat Puy De Dôme Ferraillage Le document décrit un plan de ferraillage pour un pieu de diamètre 600mm. il contient des détails techniques sur la structure du pieu ainsi que sur la zone critique et la zone courante à une profondeur de 10,5m. Le document décrit les plans de ferraillage pour des pieux de construction d'un diamètre de 720 mm, avec des informations sur le nombre et le type d'armatures ainsi que leurs dimensions et espacements.

Ferraillage Pieux 80 Pdf
Ferraillage Pieux 80 Pdf

Ferraillage Pieux 80 Pdf

4 Exe Gc Goh Fer 08 B Goh78 Ferraillage Pieux Piles Pdf
4 Exe Gc Goh Fer 08 B Goh78 Ferraillage Pieux Piles Pdf

4 Exe Gc Goh Fer 08 B Goh78 Ferraillage Pieux Piles Pdf

Ferraillage Nervure Pdf
Ferraillage Nervure Pdf

Ferraillage Nervure Pdf

Pv Ferraillage Pdf
Pv Ferraillage Pdf

Pv Ferraillage Pdf

Ferraillage
Ferraillage

Ferraillage

Début Ferraillage D Une Semelle Avec Pieux Bedrani Djilali
Début Ferraillage D Une Semelle Avec Pieux Bedrani Djilali

Début Ferraillage D Une Semelle Avec Pieux Bedrani Djilali

Plan Ferraillage Pdf
Plan Ferraillage Pdf

Plan Ferraillage Pdf

1 Ferraillage Poutres Descargar Gratis Pdf Conception
1 Ferraillage Poutres Descargar Gratis Pdf Conception

1 Ferraillage Poutres Descargar Gratis Pdf Conception

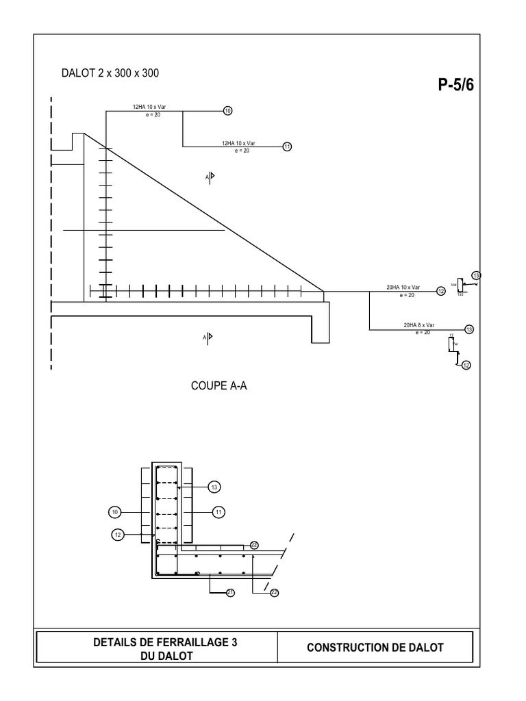
Ferraillage 3 Pdf
Ferraillage 3 Pdf

Ferraillage 3 Pdf

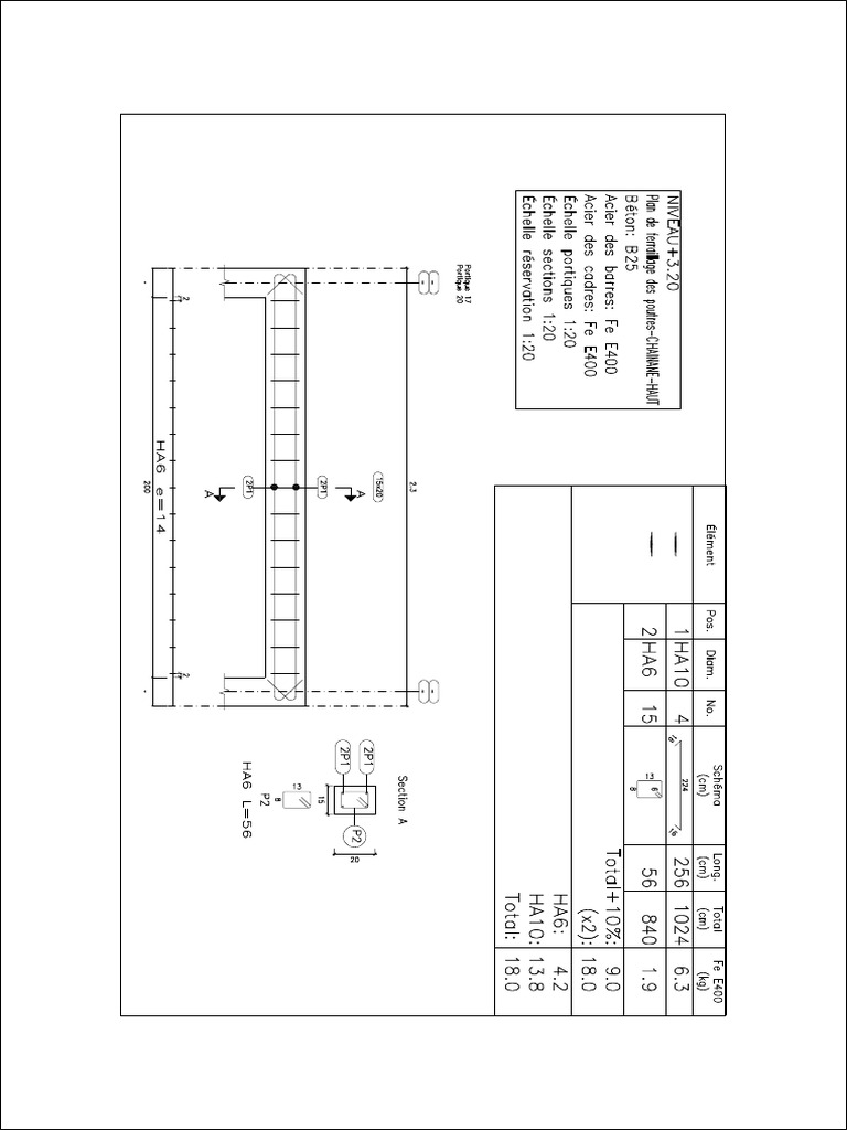
Ferraillage Chainage H Pdf
Ferraillage Chainage H Pdf

Ferraillage Chainage H Pdf

2 Ferraillage Poteau Pdf
2 Ferraillage Poteau Pdf

2 Ferraillage Poteau Pdf

Ferraillage Pieux Du Pont Pdf
Ferraillage Pieux Du Pont Pdf

Ferraillage Pieux Du Pont Pdf

Pdf Ferraillage Pieu
Pdf Ferraillage Pieu

Pdf Ferraillage Pieu

Ferraillage Des Poutrelles Pdf
Ferraillage Des Poutrelles Pdf

Ferraillage Des Poutrelles Pdf

La Phase De Ferraillage Des Pieux Génie Civil Pour Vous
La Phase De Ferraillage Des Pieux Génie Civil Pour Vous

La Phase De Ferraillage Des Pieux Génie Civil Pour Vous

Ferraillage Du Poutre Pdf
Ferraillage Du Poutre Pdf

Ferraillage Du Poutre Pdf

Ferraillage Pdf
Ferraillage Pdf

Ferraillage Pdf

Partie Ferraillage Pdf
Partie Ferraillage Pdf

Partie Ferraillage Pdf

Ferraillage
Ferraillage

Ferraillage

10 Idées De Ferraillage En 2021 Fondations De Maison Coffrage
10 Idées De Ferraillage En 2021 Fondations De Maison Coffrage

10 Idées De Ferraillage En 2021 Fondations De Maison Coffrage

Fer Ferraillage Pieux Pdf
Fer Ferraillage Pieux Pdf

Fer Ferraillage Pieux Pdf

Cours De Ferraillage Pdf
Cours De Ferraillage Pdf

Cours De Ferraillage Pdf

Cours Ferraillage Genie Civil Pdf
Cours Ferraillage Genie Civil Pdf

Cours Ferraillage Genie Civil Pdf

Ferraillage
Ferraillage

Ferraillage

La Phase De Ferraillage Des Pieux
La Phase De Ferraillage Des Pieux

La Phase De Ferraillage Des Pieux

Pieux De Fer Photo Stock Image Du Abstrait Moderne 232069412
Pieux De Fer Photo Stock Image Du Abstrait Moderne 232069412

Pieux De Fer Photo Stock Image Du Abstrait Moderne 232069412

Ferraillage Tete Pieux Pdf
Ferraillage Tete Pieux Pdf

Ferraillage Tete Pieux Pdf

Principe De Ferraillage Bis Pdf
Principe De Ferraillage Bis Pdf

Principe De Ferraillage Bis Pdf

Ferraillage Poutre006 Pdf
Ferraillage Poutre006 Pdf

Ferraillage Poutre006 Pdf

Pfe Le Calcul Du Ferraillage Des Pieux Pdf Notice Manuel D Utilisation
Pfe Le Calcul Du Ferraillage Des Pieux Pdf Notice Manuel D Utilisation

Pfe Le Calcul Du Ferraillage Des Pieux Pdf Notice Manuel D Utilisation

Ferraillage Fondation Pdf
Ferraillage Fondation Pdf

Ferraillage Fondation Pdf

Comments are closed.