Simplify your online presence. Elevate your brand.

Deep Sea 4520 Reset

Sop Lepas Modul Deep Sea 4520 Mkii Pdf
Sop Lepas Modul Deep Sea 4520 Mkii Pdf

Sop Lepas Modul Deep Sea 4520 Mkii Pdf To reset a fault code or alarm on the dse4520, the alarm condition must first be rectified. once the fault is removed, press the stop reset mode button on the module. Enjoy the videos and music you love, upload original content, and share it all with friends, family, and the world on .

Deep Sea Dse4520 Mkii Control Board Dizelsanat
Deep Sea Dse4520 Mkii Control Board Dizelsanat

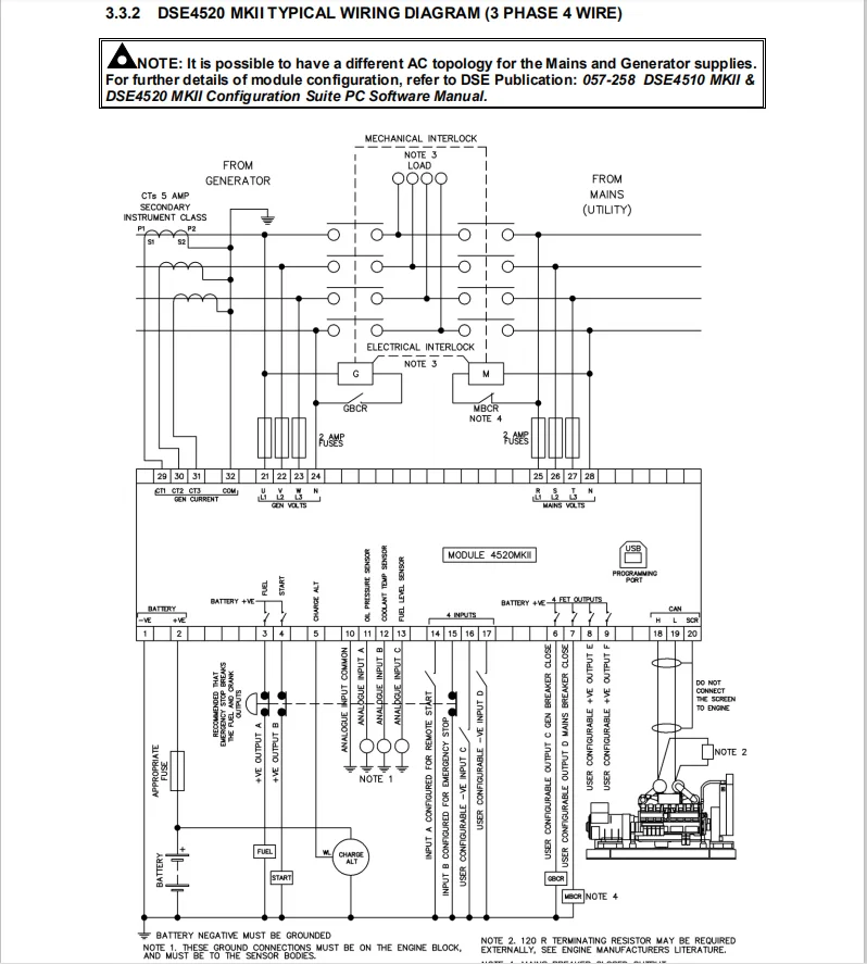
Deep Sea Dse4520 Mkii Control Board Dizelsanat The number of logged engine hours and number of starts can be set reset using the dse configuration suite pc software. depending upon module configuration, this may have been pin number locked by the generator supplier. Press the manual start mode ( ) or stop reset mode ( ) buttons to cycle through the front panel editor in increments of 1. when viewing the parameter to be edited, press the auto mode ( ) button and the value begins to flash. Press the stop reset mode • button the unit start button to reset the unit. restore the engine to operational status (reconnect the fuel solenoid). press the manual start mode button. this time the engine should start and the starter motor should disengage automatically. It describes the control push buttons, including stop reset mode, auto mode, and manual start mode. it also outlines the module display, including instrumentation icons, units, alarm icons, and load switching icons.

Deep Sea 4520 Mkii Disount Deals Americanprime Br
Deep Sea 4520 Mkii Disount Deals Americanprime Br

Deep Sea 4520 Mkii Disount Deals Americanprime Br Press the stop reset mode • button the unit start button to reset the unit. restore the engine to operational status (reconnect the fuel solenoid). press the manual start mode button. this time the engine should start and the starter motor should disengage automatically. It describes the control push buttons, including stop reset mode, auto mode, and manual start mode. it also outlines the module display, including instrumentation icons, units, alarm icons, and load switching icons. If you make a mistake, you can always restore the dse 4520 to its factory settings by pressing and holding the reset button for 10 seconds. i hope this has been helpful. View and download dse 4520mkii instruction manual online. The number of logged engine hours and number of starts can be set reset using the dse configuration suite pc software. depending upon module configuration, this may have been pin number locked by the generator supplier. Industry leading genset and ats control modules. intelligent battery chargers & power supplies.

Deep Sea Electronics 4520 Dse4520 12v Dc At 7500 Piece In Ahmedabad
Deep Sea Electronics 4520 Dse4520 12v Dc At 7500 Piece In Ahmedabad

Deep Sea Electronics 4520 Dse4520 12v Dc At 7500 Piece In Ahmedabad If you make a mistake, you can always restore the dse 4520 to its factory settings by pressing and holding the reset button for 10 seconds. i hope this has been helpful. View and download dse 4520mkii instruction manual online. The number of logged engine hours and number of starts can be set reset using the dse configuration suite pc software. depending upon module configuration, this may have been pin number locked by the generator supplier. Industry leading genset and ats control modules. intelligent battery chargers & power supplies.

Comments are closed.